Реконструкция покрасочной камеры для сварных металлоконструкций
|
Реконструкция покрасочной камеры для сварных металлоконструкций |
|
|
Размеры |
|
|
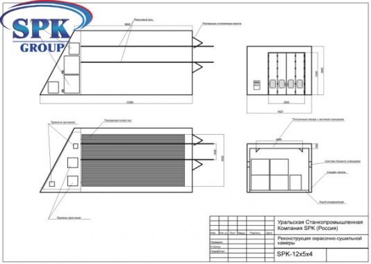
Внутренние размеры покрасочной камеры |
12366x5527x3682 мм |
|
Внешние |
14200x6000x3700 мм |
|
Направление потока воздуха |
Сверху вниз |
|
Вытяжка |
Через канал |
|
Канал |
|
|
Число каналов |
Два |
|
Колич-во решеток |
Полнорешетчатый пол |
|
Материал |
Стальные решетки |
|
Покрытие решеток |
Оцинковка |
|
Наибольшая нагрузка (kg/m3) |
1.250 |
|
Кабина |
|
|
Конструкция кабины |
Существующее помещение |
|
Стенные панели |
|
|
Наполнитель |
Пенопласт |
|
Толщина листов (в мм) |
0,5 |
|
Структура окон в дверях |
Окна, имеющие овальную форму, с теплоизоляционной резиной |
|
Основная дверь |
|
|
Габариты (Шир.*выс.) |
3300х3220 (ШхВ) |
|
Число дверей |
1 ворота |
|
Структура дверей |
Распашные ворота |
|
Крыша |
|
|
Материал панелей |
Панели EPS |
|
Модель фильтра на потолке |
SP-600 G |
|
Конструкция потолка |
Стальной каркас (из D8)
|
|
Структура потолка |
Прямая |
|
Система освещения окрасочного комплекса |
|
|
Освещение верхнее |
Система потолочного освещения 4 шт |
|
Нижнее освещение |
Система бокового освещения |
|
Направление света |
Вертикальное |
|
Каркас для крепления светильников |
- |
|
Общая мощность освещения |
Рекомендуемая мощность 3.460 Вт |
|
Группы притока/ вытяжки |
|
|
Расположение генераторов |
По двум сторонам |
|
Материал каркаса групп |
Панели RockWool |
|
Регулировка воздушных потоков |
Электрической заслонкой |
|
Число генераторных групп вытяжки |
По две группы |
|
Центробежный 2-ной вентилятор в приточной группе |
|
|
Модель |
Siemens 4.2L |
|
Производит-ность (в м³/ч) |
41 000 |
|
Мощ-сть |
4х4кВт |
|
Управление вытяжным потоком воздуха |
Используя ручную заслонку |
|
Давление |
820 Па |
|
Центробежный вентилятор 2-ного действия с ручной заслонкой в группе вытяжных фильтров |
|
|
Модель |
Siemens 450-H |
|
Производит-ность (в м³/ч) |
40 000 м3/ч |
|
Мощ-сть |
2х5,5 кВт |
|
Давление |
Давление 720 Па. |
|
Система фильтрации в окрасочном комплексе |
|
|
Фильтр притока |
Потолочный фильтр и основной фильтр |
|
Вытяжной фильтр: |
Фильтры: угольный, стекловолоконный |
|
Подогрев воздуха |
|
|
Теплообменник |
Дизельный |
|
Количество |
2 теплообменника |
|
Производительность |
460 000Кал/час |
|
Система контроля технологических режимов в оск |
|
|
Панель управления оснащается |
Окрашивание; температурное распыление с нарастанием;; регулировка времени сушки; выключатель освещения; сушка, индикатор отказа; термостат; чрезвычайная остановка; температурный ограничитель, метр часов; выключатель питания; |
|
Управление при помощи |
Реле |
|
Питание двигателя |
3Х380 Вольт и 50Гц |
|
Питание освещения |
220Вольт 50Гц |
|
Общая мощность 26кВт |
|




















































