Камера окраски для жд вагонов (возможность разделения) на 7 и 15 м SPK-22.6.6.5
| Размеры | ||||||
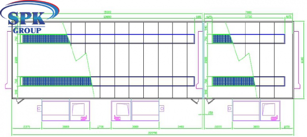
| Внутренние размеры (ДхВхШ) | 22000x6000x6500мм | Внешние размеры (ДхВхШ) | 22290x7890x7300мм | |||
| Поток воздуха | Исходящий сверху вниз | Вытяжка | Через канал в основании | |||
| Основание | ||||||
| Кол-во каналов | 2канала | Р-р канала | 760x13800/5750 мм/канал | |||
| Кол-во решеток | 4ряда (итого 34шт.) | Материал решеток | Оцинкованная сталь. 30х4мм - пластины; 10мм - скрученные пруты. | |||
| 
 | 
 | Максим. нагрузка | 500-800кг/м3 | |||
| Кабина | ||||||
| Структура кабины | Ровная | Присутствие стальной конструкции | Имеется | |||
| Панели сенные | Утепленные «сендвич -панели» с толщиной 70мм, состоящие из II-х металлических листов. Материал утеплителя минеральная вата RW | Толщина листов | 0,43мм 
 | |||
| Плотность заполнения минеральной ватой | 160г/м3 | 
 | 
 | |||
| Въездные ворота | ||||||
| Кол-во ворот | двое | Размеры дверей | 4500x5500мм (ШхВ) | |||
| Тип ворот | Роликовые электрические | 
 | 
 | |||
| Сервисная дверь | ||||||
| Кол-во | Три двери | Размеры | 700x2000мм | |||
| Расположение | Справа | Структура смотрового окна | Герметизировано резиновым уплотнителем | |||
| Крыша | Из оцинкованных стальных пластин | |||||
| Структура крыши | Прямая | Присутствие стальной конструкции | + | |||
| Конструкция потолка с закрепленными потолочных фильтров | Каркас из D8-стали | Внешний вид | Окрашенная | |||
| Исполнение панелей крыши | RW-панель | Потолочные фильтры | Мод.SP-600 G | |||
| Осветительная система | ||||||
| Верхний свет | 14 плафонов по четыре лампы с 2-ух сторон = ит. 112 ламп по 36Вт (Philips) | 
 | 
 | |||
| Нижний свет | 33 плафона по четыре лампы с 2-ух сторон = ит. 264 лампы по 36Вт (Филипс) | Направление света | Вертикальное 
 | |||
| Выпрямитель | единое действие для 2-ух ламп | Каркас для крепления светильников | Из стали | |||
| Общая мощность системы освещения | 13536Вт | 
 | 
 | |||
| Группы притока и вытяжки для 15м | ||||||
| Размещение генераторов | Справа | Конструкция генераторной группы фильтров | Квадратная оцинкованная конструкция, выполненная из стали | |||
| Обшивка групп фильтров притока, вытяжки | каркас группы вытяжки построен из панелей RW каркас группы притока - из панелей RW 
 | Регулировка потоков воздуха | Пневматическая | |||
| Колич-во генераторных групп притока | II | Колич-во генераторных групп вытяжки | II | |||
| Направление потока приточного воздуха | Через основной воздуховод | Направление потока воздуха вытяжки | Через основной задний воздуховод | |||
| Тип приточного вентилятора | Центробежный вентилятор II-ного действия | Тип вытяжного вентилятора | Центробежный вентилятор II-ного действия | |||
| Мод.Siemens 4.5M (Германия) | Мод.Siemens -710-H (Германия) | |||||
| 2по7,5кВт | 11кВт | |||||
| Произв-ность: 84000м³/ч | Произв-ность 80000м3/ч | |||||
| 
 | 
 | |||||
| Управление воздушным притоком | 
 | Управление вытяжным воздушным потоком | Оснащен ручной заслонкой | |||
| Воздуховод, предназначенный для забора | 
 | Воздуховод предназначенный для выброса | Четыре прямых, канала. 1000х1000х1000мм. одноколенный канал 90°, одноколенный канал 30° | |||
| Группы притока и вытяжки для 7 м | ||||||
| Положение генераторов | Расположение справа | Конструкция генераторной группы | Квадратной формы оцинкованная стальная конструкция | |||
| Обшивка групп притока и вытяжки | каркас группы вытяжки выполнен из RW-панелей каркас группы притока выполнен из RW- панелей 
 | Регулировка потоков воздуха | Пневматическая | |||
| Кол-тво приточных генераторных групп | одна | Кол-тво генераторных вытяжных групп | одна | |||
| Направление воздухопотока притока | Через основной воздуховод | Направление воздухопотока вытяжки | Через основной задний воздуховод | |||
| Тип вентилятора притока | Центробежный вентилятор II-ого действия | Тип вытяжного вентилятора | Центробежный вентилятор II-ного действия | |||
| Siemens -630-H (Германия) | Siemens -710-H (Германия) | |||||
| 2х7,5кВт | 11кВт | |||||
| Производительность: 50000м³/ч | Производительность: 40000м³/ч | |||||
| Управление воздушным притоком | 
 | Управление вытяжным воздушным потоком | Оборудован ручной заслонкой. | |||
| Воздуховод, предназначенный для забора | 
 | Воздуховод, предназначенный для выброса | 4прямых канала размером 1000х1000х1000мм. 1-коленный канал 90°, одноколенный канал 30° | |||
| Отопление | ||||||
| Способ отопления | Газовая горелка | Топливный генератор | 3штуки | |||
| Горелка | RS5, одноступенчатая | Тепловая мощность | 260000кКал/ч | |||
| Теплообменник | Многотактовый: отверстия анти-взрывные | Топливный генератор | 260кВт/ч | |||
| Выхлопная труба | Четыре штуки | Материал выхлопной трубы | Из оцинкованной стали | |||
| Фильтрация | ||||||
| Фильтр приточной группы | Основной фильтр карманной формы и потолочный фильтр | Фильтр вытяжки | Стекловолоконный/ угольный фильтры | |||
| Система контроля | ||||||
| Управления | С помощью реле | 
 | 
 | |||
| Запуск генератор притока | Есть | Запуск генератора вытяжки | + | |||
| 
 Панель управления | Режимы: окрашивание, выключатель для освещения, выключатель для питания, аварийная остановка, таймер/ контроллер темп. в кабине камеры, индикаторы и контроллеры для режимов работ. 
 | |||||
| Питание | ||||||
| Эл-питание двигателя | 3х380В, 50Гц | Эл-питание освещения | 220вольт 50Гц | |||
| Общая мощность ОСК 93кВт | ||||||
| Другое | ||||||
| Стекло | Толщиной 5мм, закаленное | 
 | 
 | |||
Внутренние габариты камеры (ДхВхШ): 22000x6000x6500 мм
Внешние габариты (ДхВхШ) : 22290х7890х7300 мм
Габариты ОСК




