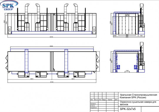
Покрасочная камера для кранов и сварных металлоконструкций SPK-32.7.5
|
Покрасочная камера для кранов и сварных металлоконструкций SPK-32.7.5 |
|
|
Размеры |
|
|
Внутренние размеры камеры |
32000x7000x5000 мм |
|
Внешние размеры |
32144x9550x5600 мм |
|
Направление воздушного потока |
Исходит сверху вниз |
|
Вытяжка |
Стены камеры |
|
Боковая вытяжка |
|
|
Каналы |
Два |
|
Колич-во решеток |
2 ряда |
|
Конструкция решеток |
плоские полосы из стали со скрученной стальной арматурой толщиной 10 мм |
|
Покрытие решеток |
Оцинкованное покрытие |
|
Кабина камеры |
|
|
Конструкция |
Выпуклая |
|
Материал |
Сталь |
|
Стенные панели |
|
|
Толщина стали в панелях (мм) |
0.5 |
|
Наполнитель |
Вата минеральная |
|
Толщина Панели (мм) |
70 |
|
Сервисная дверь в кабине |
|
|
Габариты двери (ШхВ), мм |
800х2000 |
|
Расположение |
Справа |
|
Число дверей |
две |
|
Структура окон |
Герметизация резиновыми уплотнителями, окна имеют овальную форму |
|
Основная дверь камеры |
|
|
Структура |
Распашные ворота |
|
Размеры (ШхВ) |
5000х5000 мм |
|
Материал |
Сталь оцинкованная |
|
Разделение камеры |
Рольставни 1 |
|
Крыша |
|
|
Материал панелей |
EPS |
|
Конструкция потолка |
каркас стальной (D8) |
|
Структура крыши |
Силовой каркас |
|
Потолочные фильтры |
Модель SP-600G |
|
Осветительная система камеры |
|
|
Освещение верхнее |
40 плафонов* 4 лампы, всего 160 ламп по 36 Вт |
|
Нижнее освещение |
34 плафона по 4 лампы, всего 136 ламп по 36 Вт |
|
Действие выпрямителя |
для двух ламп 1 действие |
|
Каркас крепления |
Из стали |
|
Общая мощность (Вт) |
10.656 |
|
Группы притока/ вытяжки (воздухообмен 120 крат/час) |
|
|
Размещение генераторов |
Справа |
|
Материал каркаса групп |
EPS панели |
|
Регулировка воздушных потоков |
Пневматическая заслонка |
|
Колич-во генераторных групп вытяжки |
По 4 генератора |
|
Центробежный 2-ной вентилятор в приточной группе |
|
|
Модель |
Siemens 4.5M |
|
Производит-ность (в м³/ч) |
134 000 м³/ч+ существующая система |
|
Мощ-сть |
2*5.5 кВт |
|
Давление |
780Па |
|
Центробежный 2-ной вентилятор с ручной заслонкой в вытяжной группе |
|
|
Модель |
Siemens-710-H |
|
Производит-ность (в м³/ч) |
133 000 м3/ч |
|
Мощ-сть |
1х7,5кВт |
|
Давление |
Давление 726 Па. |
|
Система фильтрации камеры |
|
|
Состав фильтра притока |
Потолочный и основной фильтры |
|
Вытяжной фильтр включает в состав |
Фильтры: угольный, стекловолоконный |
|
Тепловая система |
|
|
Способ подогрева |
Газовая/ дизельная горелка, паровой теплообменник, либо водяной теплообменник с догревом |
|
Модель |
R5 |
|
Количество |
4 теплообменника |
|
Производительность, кКал/час |
260.000 *4 |
|
Структура теплообменника |
Антивзрывчатое отверстие и Мультицикл |
|
Система контроля технологических режимов |
|
|
Панель управления оборудуется: |
- Окрашивание; - возрастающее температурное распыление; - выключатель освещения; - сушка до 80-и градусов, - регулировка времени сушки; - индикатор отказа; - метр часов; - термостат; - чрезвычайная остановка - выключатель питания; |
|
Управление при помощи |
Реле |
|
Питание |
|||||
|
Электропитание двигателя |
380 вольт*3, 50Гц |
Питание освещения |
220 вольт 50Гц |
||
|
Мощность общая 89,6 кВт |
|||||
|
Система перемещения маляров-операторов |
|||||
|
Подъемно-передвижной лифт площадка |
2 шт. |
||||
|
Питание |
380Вольт |
||||
|
Буран 50 Система пожаротушения |
|||||
|
Срабатывание в автоматическом режиме
|
Порошковая система пожаротушения |
||||
Внутренние габариты камеры (ДхВхШ): 32000x7000x5000
Внешние габариты (ДхВхШ) : 32144x9550x5600
Габариты ОСК


