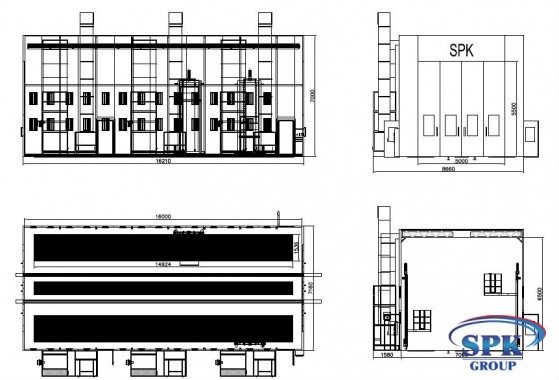
Окрасочно-сушильная камера для сварных металлоконструкций с тележкой SPK 16x7x6
|
Размеры камеры покраски |
|||||
|
Внутрен. размеры, мм |
16000x7000х6500 |
Внеш. размеры, мм |
16210x8660x7000 |
||
|
Вытяжка |
через пол |
Воздух в камере направлен |
↓ |
||
|
Вытяжка |
|||||
|
Количество каналов |
Пол полнорешетчатый |
Число решеток |
5 рядов |
||
|
Размер канала |
14924 х 768 mm/ каждый канал |
Решетки |
-плоские полосы -скрученная арматура, стальная |
||
|
Покрытие |
оцинкованное |
Максимальное усилие, кг/ м.кв |
1000 |
||
|
Кабина |
|||||
|
Каркас кабины |
силовой |
Стальная конструкция |
+ |
||
|
Основная дверь камеры SPK |
|||||
|
Размер ворот |
5000х 5500 (Шх В) |
Кол-во, шт. |
Две двери |
||
|
Материал двери |
оцинкованная сталь |
Окна |
- |
||
|
Разделение камеры |
да |
Уплотнение |
Резина теплоизоляционная |
||
|
Панели стеновые |
|||||
|
Слой стали в панелях |
0.6мм |
Толщина панели |
80мм |
||
|
Наполнитель |
Минеральная вата |
||||
|
Описание наполнителя |
Пропитан антисептиком, пожароустойчивый |
Плот-сть заполнения, в кг / куб.м |
112.0 |
||
|
Сервисная дверь в малярной камере SPK |
|||||
|
Число, шт. |
три |
Р-ры дверей, в mm (Ш хВ) |
800 * 2000 |
||
|
Вид |
выхлопная |
Окна |
Прямоугольное окно + уплотнитель термоизоляционная резина |
||
|
Крыша SPK |
|||||
|
Исполнение крыши |
Сэндвич-панели 50мм, крыша прямая |
Покрытие каркаса |
Покрывается порошковой окраской |
||
|
Конструкция потолка, где закрепляются фильтры |
В основе каркаса сталь D8 |
Каркас |
Каркас стальной силовой |
||
|
Материал панели крыши |
Минерал. вата |
Фильтры на потолке |
Модель фильтров SP - 600 G |
||
|
Свет в камере SPK |
|||||
|
Освещение верхнее (45 °) |
20 плафонов, четыре лампы в каждом = 80 ламп мощ. по 36 Вт |
Исполнение каркаса, где крепятся светильники |
Сталь |
||
|
Освещение нижнее (в панелях) |
54 плафона, 2 лампы в каждом = 108 ламп мощ. по 18Вт |
Выпрямитель |
На две лампы – одно действие |
||
|
Характеристики приточной/ вытяжной групп. При скорости потока воздуха 0,23 - 0,3 метров/сек |
|||||
|
Материал конструкции |
Сталь |
Управление воздушными массами |
автоматической заслонкой |
||
|
Обшивка групп |
Каркас из теплоизоляционных панелей |
Дислокация генератора |
Слева |
||
|
Генераторы притока, шт. |
три |
Генераторы вытяжки |
три |
||
|
Поток воздуха притока |
↓ |
Поток воздуха вытяжки |
↑ |
||
|
Вентилятор притока |
-центробежный Siemens, с двойным действием |
Вентилятор группы вытяжки |
- центробежный Siemens, с двойным действием |
||
|
2 х 5 кВт |
1 * 6,5 кВт |
||||
|
Производительность: 94 360 м³/час |
Производительность: 93 500 м³/час |
||||
|
Давление 760 Па. |
Давление 730 Па. |
||||
|
Управление притоком |
Автоматическая заслонка |
Регулировка вытяжки |
Ручная заслонка |
||
|
Очистка от окрасочного тумана кг/ч |
86 |
Макс количество используемой краски кг/ч |
310 |
||
|
Максимальное количество окрашиваемой поверхности м2/ч |
352
|
Максимальное количество сушки поверхности м2/ч |
На блок 310
|
||
|
Количество окрашиваемых изделий с учетом режимов окраска 20 °C, сушка 60 °C. м2/сутки (24 часа) с учетом погрузки, выгрузки и ТО. При работе дух маляров в покрасочном блоке и производительности 35 м2/ч/чел. |
На блок 385 м2 /сутки 2 маляра Из расчета 350 раб дней 392 000 м2 /год |
|
|
||
|
Тепловая система в камере SPK |
|||||
|
Вид горелки
|
Газовая горелка |
Колич-во теплообменников
|
3 шт. |
||
|
Фильтрация |
|||||
|
Система фильтра притока |
Главный карманный фильтр + Потолочный |
Конструкция фильтра вытяжки |
Включает: 1. Стекловолоконный и 2. угольный фильтр |
||
|
Система передвижения маляров в покрасочной камере |
|||||
|
Кол-во лифт площадок, шт. |
2 шт. |
Питание системы |
3*380 Вт 50 Гц |
||
|
IP65 Контроль технологических режимов |
|||||
|
Управляется |
С исп. Реле |
||||
|
Управляющая панель |
Запускает: окрашивание, тепловое распыление с ; сушку до 65°С с регуляцией времени, метр часов и выключатели питания и освещения; чрезвычайную остановку и индикатор отказа; термостат |
||||
|
Питание |
|||
|
- двигателей, Вт/Гц |
3* 380 / 50 |
Питание освещения, Вт/Гц |
220/ 50 |
|
Общая мощность 54кВт |
|||
Внутренние габариты камеры (ДхВхШ): 16000x7000х6500
Внешние габариты (ДхВхШ) : 16210x8660x7000
Габариты ОСК













