Камера окраски уличного типа совмещенная с дробеструйной SPK 36
Описание камеры окраски
|
Размеры |
||||||||||||
|
Внутренние размеры (mm) |
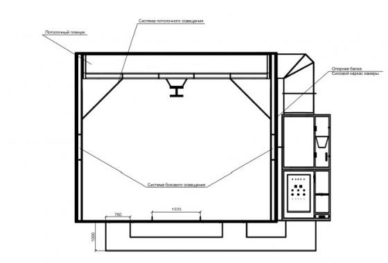
18000x6500x6000 Система разделения камеры на два блока, каждый по 18 метров. 1 камера - покрасочная 2-ая дробеструйная |
Внешние габариты |
18400x11300x7700mm ОСК 60000x7500x7700mm Конструкция
|
|||||||||
|
Направление воздуха |
К полу |
Вытяжка |
Через два канала в обеих камерах итого 4 шт |
|||||||||
|
Боковая вытяжка |
||||||||||||
|
Кол-ство каналов |
два канала |
Размер канала |
16200х760mm/канал |
|||||||||
|
Кол-ство рядов решеток |
два |
Материал решеток |
Сталь, плоские |
|||||||||
|
Покрытие решеток |
Оцинкованное |
Наибольшая нагрузка (kg/m3) |
1200 |
|||||||||
|
Кабина |
||||||||||||
|
Форма кабины |
Выпуклая |
Каркас |
Силовой металлический каркас |
|||||||||
|
Навес и утепленные помещения для данной камеры |
||||||||||||
|
Навес и монорельсовая система.
|
Конструкция из стали с крышей, размеры 60000x7000x7700 мм
|
4 электропомещения, агрегатная (установка блоков для подготовки воздуха, систем фильтрации, нагрева воздуха, а также автоматической системы порошкового пожаротушения) 4600х2400х5400 мм Сэндвич-панели 150 мм |
Система автоматики Окрасочно-сушильной камеры, источник бесперебойного питания, автоматика системы пожаротушения, |
|||||||||
|
Монорельс |
2 КАНАТНЫЕ ЭЛЕКТРИЧЕСКИЕ ТАЛИ, уровень Пыле- и влагозащиты IP 55, Пожаробезопасное исполнение ПI Грузоподъемность 5т |
Максим. нагрузка на 3.200 мм
|
12,3 тонн
|
|||||||||
|
Главная дверь |
||||||||||||
|
Конструкция |
Распашные ворота |
Габариты дверей (ШхВ) |
5000х6000 |
|||||||||
|
Материал |
Оцинкованная сталь |
|
|
|||||||||
|
Стеновые панели |
||||||||||||
|
Толщина Панелей |
150мм |
Толщина стали |
0,55мм |
|||||||||
|
Заполнение |
Минеральная вата |
Плотность заполнения кг/м2 |
19 |
|||||||||
|
Сервисная дверь |
||||||||||||
|
Число дверей |
5 |
Р-ры дверей (ШхВ) |
800х2000 |
|||||||||
|
Расположение |
По обеим сторонам |
Антипаниковая система - аварийный выход с освещением |
|
|||||||||
|
Крыша |
|
|||||||||||
|
Форма |
Прямая |
Наличие стальной конструкции |
+ |
|||||||||
|
Потолок |
Каркас из стали D8 |
Разрывная конструкция |
4 шт. легко сбрасываемые панели |
|||||||||
|
Изготовление панелей крыши |
Из минеральной ваты |
Фильтр потолка |
SP-600G |
|||||||||
|
Осветительная система в камере |
||||||||||||
|
Система верхнего освещения |
20 плафонов, в каждом 4 лампы = 160 ламп по 36Вт мощностью |
Каркас крепления для светильников |
Сталь |
|||||||||
|
Система нижнего освещения |
18 плафонов х 4 лампы = 144 лампы мощ-стью 36 Вт |
Аварийная система освещения |
26 ламп мощностью 36 Вт |
|||||||||
|
Выпрямитель |
действие одно для 2 ламп |
Мощ-сть освещения общая |
5 860 Вт |
|||||||||
|
Характеристика Группы притока и вытяжки |
||||||||||||
|
Обшивка обеих групп |
каркас обеих групп выполнен из панелей с заполнением минеральной ватой |
Воздушный поток |
Регулировка пневматической заслонкой |
|||||||||
|
Кол-ство генераторов притока |
два |
Кол-ство генераторов вытяжки |
два |
|||||||||
|
Вентилятор притока |
Параметры двойного центробежного вентилятора |
Вытяжной вентилятор |
Параметры двойного центробежного вентилятора |
|||||||||
|
Пр-во Siemens |
Пр-во Siemens |
|||||||||||
|
Общая произв-ность: 92 000 м³/час |
Общая произв-ность: 92 000 м³/ч |
|||||||||||
|
Давление 700Па. |
Давление 700Па. |
|||||||||||
|
Система подогрева воздуха |
||||||||||||
|
Способ подогрева |
Водяной калорифер + Газовая горелка |
Количество |
2 теплообменника с догревателем |
|||||||||
|
Модель |
RS44 |
Произв-ность горелки |
До 720-ти кВт * 2 Расход 80-440 куб.м/час |
|||||||||
|
Конструкция теплообменника |
Мультицикл+ антивзрывчатое отверстие |
Рекуператор |
Имеется |
|||||||||
|
Система фильтрации в камере |
||||||||||||
|
Приточный фильтр |
Основной фильтр в форме кармана; Потолочный фильтр |
Вытяжной фильтр |
Стекловолоконный фильтр, угольный фильтр |
|||||||||
|
Контроль технологических режимов |
||||||||||||
|
Управление в камере |
Реле |
|||||||||||
|
Панель управления |
Режим окрашивания; индикатор отказа; возрастающее тепловое распыление ; сушка до 60-ти град. с регулированием времени; выключатель освещения и питания; термостат; метр часов; чрезвычайная остановка; |
|||||||||||
|
Перемещение операторов |
||||||||||||
|
Подъемно-передвижная лифт площадка |
2 шт |
Питание (вольт) |
380 |
|||||||||
|
Питание |
||||||||||||
|
Питание двигателя (Вольт) |
3х380/ 50Гц |
Питание освещения (Вольт) |
220/ 50Гц |
|||||||||
|
Общая мощность 78 кВт |
||||||||||||
|
Буран 50 Система пожаротушения |
||||||||||||
|
Срабатывание в автоматическом режиме |
Порошковая система пожаротушения + система сигнализации |
|||||||||||
Описание дробеструйной камеры
|
Размеры |
||||||||||||
|
Внутренние |
18000x6500x6000 mm Система разделения камеры на два блока по 18 метров, 1-ая покрасочная, 2-ая дробеструйная |
Внешние |
18400x8900x7700 mm DB 60000x7500x7700 mm Конструкция |
|||||||||
|
Поток воздуха |
К полу |
Вытяжка |
Через два канала, которые расположены в каждой камере, итого 4 шт |
|||||||||
|
Вытяжка ч-з пол |
||||||||||||
|
Число каналов в вытяжке |
2 канала |
Габариты канала для сбора дроби |
17100х1120 мм/канал |
|||||||||
|
Число рядов решеток |
2 ряда |
Материал решеток |
плоские стальные |
|||||||||
|
Покрытие решеток |
Оцинкованное |
Max нагрузка |
1.200kg/m3 |
|||||||||
|
Кабина |
||||||||||||
|
Форма кабины |
Выпуклая |
Наличие стальной конструкции |
Каркас силовой металлический |
|||||||||
|
Навес +утепленные помещения для Дробеструйной камеры |
||||||||||||
|
Навес с монорельсовой системой.
|
Стальная конструкция с крышей, габариты 60000*7000*7700 mm
|
1 электропомещение, агрегатная (в т.ч установка, фильтровентиляционный агрегат подготовки воздуха, фильтровальных систем, а также систем нагрева воздуха, автоматической системы порошкового пожаротушения) размер 11480х2400х5400 мм Сендвич-панель 150 мм |
Секционный фильтр патронного типа, Агрегатный блок 2 Дробеотделителя лабиринтного типа, Защитные костюмы для маляра-оператора (включая спилковый комбинезон, шлем и перчатки) – 2 комплек. Напорные рукава – 20 м. 2 сопло |
|||||||||
|
Монорельс |
-2 КАНАТНЫЕ ЭЛЕКТРИЧЕСКИЕ ТАЛИ (под пылевые камеры) -пыле-влагозащита IP 55, -Пожаробезопасное исполнение П I -Грузоподъемность 5т |
Максимал.нагрузка на 3200мм
|
12,3 т
|
|||||||||
|
Главная дверь |
||||||||||||
|
конструкция |
Распашные ворота |
Размеры дверей (ШхВ) |
5000х6000 |
|||||||||
|
Материал |
сталь с оцинковкой |
Резина толщ. 6 мм |
|
|||||||||
|
Стенные панели |
||||||||||||
|
Толщина Панели |
150 мм |
Толщина стали |
0,6мм |
|||||||||
|
Материал наполнения |
Минеральная вата |
Плотность заполнения |
19 кг/кв.м |
|||||||||
|
Сервисная дверь |
||||||||||||
|
Число сервисных дверей |
2 |
Размеры дверей (Ш х В) |
800х2000 |
|||||||||
|
Расположение |
С двух сторон |
Антипаниковая система с освещенным аварийным выходом |
Резина толщ. 6 мм |
|||||||||
|
Крыша |
|
|||||||||||
|
Форма крыши |
Прямая |
Конструкция, выполненная из стали |
Да |
|||||||||
|
Конструкция потолка с креплением фильтров |
из стали D8 |
|
|
|||||||||
|
Материал исполнения крыши |
Минеральная вата |
|
|
|||||||||
|
Освещение в Дробеструйной камере |
||||||||||||
|
Верхний свет |
28 плафонов Х 2 лампы Х 36Вт |
Каркас крепления светильников |
Стальной каркас |
|||||||||
|
Нижний свет |
- |
Аварийная система освещения |
6 ламп Х 36 Вт |
|||||||||
|
Выпрямитель |
1 действие для пары ламп |
|
|
|||||||||
|
Группа подготовки воздуха |
||||||||||||
|
Каркас групп притока и вытяжки |
Каркас моноблока выполнен из стальных панелей |
Регулировка воздушных потоков |
Пневматическая заслонка |
|||||||||
|
Количество генераторов притока |
Моноблок |
Количество генераторов вытяжки |
Моноблок |
|||||||||
|
Вентилятор притока |
Центробежный вентилятор двойного действия |
Вытяжной вентилятор |
Центробежный вентилятор двойного действия |
|||||||||
|
Siemens |
Siemens |
|||||||||||
|
Производительность общая (м3/час): 30 000 |
Производительность общая (м3/час): 30 000 |
|||||||||||
|
Давление 700Па. |
Давление 700Па. |
|||||||||||
|
Система регенерации дроби в камере |
||||||||||||
|
Метод регенерации |
Сепаратор |
Агрегатный блок Дробеотделитель лабиринтного типа. Вибросепаратор. 2 шт Напорные рукава диамет. 32 мм, сопло Вентури диаметром 8 мм., Система дробедвижения |
Р-р ячеек сита 2 мм. Бункер-накопитель об. 200л. Напорный агрегат 200 л DBS-200. Вентили дистанционного управления. |
|||||||||
|
Система сбора дроби |
||||||||||||
|
Пол скребковый |
Пол скребковый, оснащенный грейферными скребками. Линейка сбора абразива установлена вдоль стен камеры. Высота пола составляет180мм. Ширина линейки составляет 1,12м. Решетчатый настил пола. Пневматический привод скребков (на каждую линейку). |
Фильтр вытяжки |
|
|||||||||
|
Система контроля технологических режимов |
||||||||||||
|
Управление |
Реле |
|||||||||||
|
Панель управления |
|
|||||||||||
|
Система перемещения маляров-операторов |
||||||||||||
|
Помост полнорешетчатый |
|
|
|
|||||||||
|
Питание |
||||||||||||
|
Питание двигателя |
3 по 80 вольт 50Гц |
Питание освещения |
220вольт и 50Гц |
|||||||||
|
Общая мощность 42кВт |
||||||||||||
Вытяжка: через 2 канала в обеих камерах - итого 4 шт
Внутренние габариты камеры (ДхВхШ): 18000x6500x6000 мм
Внешние габариты (ДхВхШ) : 18400x11300x7700 мм
Габариты ОСК








