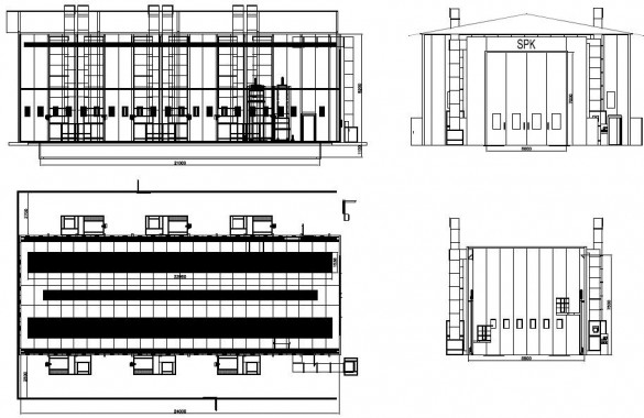
Покрасочно-сушильная камера уличной установки для цистерн SPK 24x8x7
Спецификация оборудования №1. Камера окрасочная SPK 24x8x7
|
Размеры малярно сушильной камеры |
||||||||||
|
Внутренние габариты |
24000x8800х7500mm |
Внешние размеры |
24240x12040x8200mm |
|||||||
|
Поток воздуха |
Исходит вниз |
Вытяжка |
Ч-з пол |
|||||||
|
Вытяжка |
||||||||||
|
Количество каналов |
три |
Размер каждого канала |
22960х770 mm/1 канал |
|||||||
|
Количество решеток |
5 рядов решеток |
Материал решеток |
Решетки выполнены из плоских стальных полос и 10-mm скрученной стальной арматуры |
|||||||
|
Смотровая яма |
1 канал |
Размер смотровой ямы |
21000х1100mm |
|||||||
|
Покрытие решеток |
оцинковка |
Нагрузка максимальная |
1.000 кг/м2 |
|||||||
|
Кабина камеры. Уличное исполнение |
||||||||||
|
Конструкция кабины |
Силовой каркас |
Стальная конструкция |
Присут. |
|||||||
|
Основная дверь камеры. Уличное исполнение |
||||||||||
|
Кол-тво |
1 шт. |
Размеры ворот |
6000х7000 (ШхВ) |
|||||||
|
Материал |
оцинкованная сталь |
Разделение камеры |
+ |
|||||||
|
Окна |
- |
Уплотнитель |
теплоизоляционная резина |
|||||||
|
Стеновые панели малярной камеры. Уличное исполнение |
||||||||||
|
Толщ. панели |
120мм |
Толщ. стали |
0.6 мм |
|||||||
|
Наполнитель в панелях |
Минеральная вата |
Характеристики наполнителя |
Негорючий, с антисептиком |
|||||||
|
Плот-сть заполнения |
112.0 кг/м.куб. |
|
|
|||||||
|
Сервисная дверь |
||||||||||
|
Двери |
3 шт. |
Размеры дверей, мм (Ш х В) |
800х2000 |
|||||||
|
Вид двери |
выхлопная |
Конструкция окон |
С уличным исполнением не совместимы. Для помещения одно окно прямоугольное + уплотнение термоизоляционной резины |
|||||||
|
Крыша. В уличном исполнении |
||||||||||
|
Структура |
Форма - прямая, сэндвич панели 100мм. |
Каркас |
Стальной силовой |
|||||||
|
Конструкция потолка с закреплением потолочных фильтров |
Каркас производится из стали D8 |
Покрытие каркаса |
Порошковая покраска |
|||||||
|
Панели |
Заполняются минеральной ватой |
Модель потолочных фильтров |
SP-600 G |
|||||||
|
Освещение малярной камеры |
||||||||||
|
Верхний свет (45 град-в) |
Включает 32 плафона, каждый по 4 лампы |
Каркас крепления светильников |
Из стали |
|||||||
|
Нижний свет (встроенный в панели) |
Включает 32 плафона, каждый по 2 лампы |
Выпрямитель |
Одно действие Х две лампы |
|||||||
|
Группы притока и вытяжки в Уличном исполнении |
||||||||||
|
Положение генератора |
На обеих сторонах |
Структура генераторной группы |
Стальная конструкция в форме квадрата |
|||||||
|
Обшивка обеих групп |
Теплоизоляционные панели |
Потоки воздуха регулируются |
Автоматической заслонкой |
|||||||
|
Генераторы приток |
6 шт. |
Генераторы вытяжки |
6 шт. |
|||||||
|
Поток воздуха притока |
Направляется Сверху вниз |
Поток воздуха вытяжной группы |
Направляется Снизу вверх |
|||||||
|
Характеристики двойного центробежного вентилятора притока |
Производитель Siemens |
Характеристики двойного вытяжного вентилятора |
Производитель Siemens |
|||||||
|
|
Siemens |
|||||||||
|
2х4,5 кВт |
1х6,5кВт |
|||||||||
|
Производительность: 184 000 м³/ч |
Производительность: 183 000 м³/ч |
|||||||||
|
Давление 760 Па. |
Давление 731 Па. |
|||||||||
|
Приток воздуха производится |
Автоматической заслонкой |
Управление вытяжным потоком воздуха |
Ручной заслонкой |
|||||||
|
Подогрев воздуха в малярной камере |
||||||||||
|
Способ отопления |
Горелки: Дизельная, либо газовая; пар; вода; электричество |
Теплообменники
|
6 шт. |
|||||||
|
Модель горелок |
RС |
Мощность |
1.458 кВт |
|||||||
|
Теплообменник |
Включает в структуру: антивзрывчатое отверстие и мультицикл |
|||||||||
|
Система автоматического микроклимата покрасочной камеры |
||||||||||
|
Автоматическое включение |
3 х 380 Вт/50Гц |
Действия при замерзании агрегатной группы |
1. Разморозка фильтровальной системы, 2. разморозка льда в рекуператоре, 3. устранение эффекта бани, 4. удаление конденсата |
|||||||
|
Режимы работы |
Режим сна: +2°C Перед работой: +18°C Аварийный: Разморозка |
Наибольшая мощность 39кВт |
|
|||||||
|
Фильтрационная система |
||||||||||
|
Фильтр притока |
Основной фильтр карманной формы; Потолочный фильтр |
Фильтр вытяжки |
Конструкция состоит из стекловолоконного и угольного фильтров |
|||||||
|
Система перемещения маляров в малярном боксе |
||||||||||
|
Лифт площадки |
2 |
Питание |
3 х380 Вт/ 50Гц |
|||||||
|
Система автоматического пожаротушения |
||||||||||
|
Модель |
Буран 50КД |
Срабатывание |
В автоматическом режиме |
|||||||
|
Способ тушения |
порошковый |
|||||||||
|
Система контроля технологических режимов. IP 65 |
||||||||||
|
Способ управления |
Реле контроллер |
|||||||||
|
Панель управления включает в себя режимы |
- Окрашивание; - возрастающее температурное распыление; - сушка, регулирование времени сушки; выключатель системы освещения; индикатор отказа; термостат и метр часов; выключатель питания и чрезвычайная остановка; |
|||||||||
|
Питание |
|||
|
Питание двигателя |
3х 380 Вт/50Гц |
Питание освещения |
220 Вт/ 50Гц |
|
Общая мощ-сть 108 кВт |
|||
Вытяжка: Через пол
Внутренние габариты камеры (ДхВхШ): 24000x8800х7500 мм
Внешние габариты (ДхВхШ) : 24240x12040x8200 мм
Габариты ОСК











