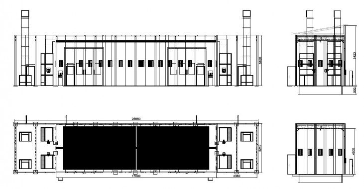
Уличная окрасочная камера, пристроенная к существующему зданию SPK-17.5.5
|
Размеры окрасочной камеры |
|||||||||||
|
Габариты внутренние |
17000x5000х4800mm |
Габариты внешние |
25880x5400x5240mm |
||||||||
|
Вытяжка |
ч/з пол |
Поток воздуха |
Исходит вниз |
||||||||
|
Вытяжка |
|||||||||||
|
Количество каналов |
Полнорешетчатый пол |
Размер канала
|
16000х4600mm/канал
|
||||||||
|
Число рядов решеток |
6 шт. |
Решетки |
Из плоских стальных полос и скрученной стальной арматуры 10 мм толщиной |
||||||||
|
Покрытие решеток |
оцинкованное |
Нагрузка max |
1.000 кг/м2 |
||||||||
|
Кабина. В уличном исполнении |
|||||||||||
|
Конструкция кабины камеры |
силовой каркас утеплённые балки |
Стальная конструкция Маневровое устройство |
+ Монорельс – Таль 1 т
|
||||||||
|
Главная дверь. В уличном исполнении |
|||||||||||
|
Количество |
две |
Размеры ворот |
3900х4000 (ШхВ) |
||||||||
|
Материал |
оцинкованная сталь |
Разделение камеры |
.+ |
||||||||
|
Форма окон |
Прямоугольная |
Уплотнение двери |
Теплоизоляционной резиной |
||||||||
|
Стеновые панели. В уличном исполнении |
|||||||||||
|
Толщина панели, в мм |
120 |
Толщина стали, в мм |
0,6 |
||||||||
|
Заполнение |
Минеральной ватой |
Свойства наполнителя |
Негорючий, пропитывается антисептиком |
||||||||
|
Плотность (кг/ м³) |
112 |
|
|
||||||||
|
Сервисная дверь |
|||||||||||
|
Количество дверей |
2 |
Габариты |
800 х 2000 (Ш х В) |
||||||||
|
Вид двери |
выхлопная |
Окно в двери |
Несовместимо с уличной установкой |
||||||||
|
Крыша. В уличном исполнении |
|||||||||||
|
Структура |
Прямая, сэндвич-панели 100мм толщиной |
Наличие стальной конструкции |
Каркас стальной силовой Утепленные балки |
||||||||
|
Потолок с креплением потолочных фильтров |
Конструкция из стали D8 |
Покрытие каркаса |
Порошковой окраской |
||||||||
|
Материал панели крыши |
Минеральная вата |
Потолочные фильтры |
Модель фильтров SP-600G |
||||||||
|
Осветительная система камеры SPK-17.5.5 |
|||||||||||
|
Верхний свет (45 градусов) |
22 плафона, в каждом 4 лампы |
Конструкция крепления светильников |
Стальной |
||||||||
|
Нижний свет (встроенный в панели) |
24 плафона, в каждом по 2 лампы |
Выпрямитель |
одно действие Х две лампы |
||||||||
|
Группы притока и вытяжки в уличном исполнении |
|||||||||||
|
Положение генератора |
С двух сторон
|
Генераторной группы |
Имеет конструкцию квадратной формы из стали |
||||||||
|
Обшивка групп |
из теплоизоляционных панелей |
Регулировка потоков воздуха |
Автоматической заслонкой |
||||||||
|
Генераторы притока |
4 шт. в группе |
Генераторы вытяжки |
4 шт. в группе |
||||||||
|
Воздушный поток |
Сверху вниз |
Воздушный поток |
Снизу вверх |
||||||||
|
Вентилятор приточной группы |
Имеет двойное действие |
Вентилятор вытяжной группы |
Имеет двойное действие |
||||||||
|
Пр-во Siemens |
Пр-во Siemens |
||||||||||
|
Мощность: 2 х 4кВт |
Мощность: 1 х 5,5 кВт |
||||||||||
|
Производительность: 90 000 м³/ч |
Производительность: 89 000 м³/ч |
||||||||||
|
Давление (Па) 780 |
Давление (Па) 726 |
||||||||||
|
Приток воздуха |
Управляется автоматической заслонкой |
Поток воздуха в вытяжке |
Управляется ручной заслонкой |
||||||||
|
Тепловая система камеры |
|||||||||||
|
Горелка |
Дизельная |
Количество 4 шт.
|
4 шт. |
||||||||
|
Модель горелок |
RС |
Произ-ность горелки расход кг/ч Рекуператор |
420-1520 кВт 60-112 кг/ч С рекуператором 32-73 |
||||||||
|
Конструкция теплообменника |
Мультицикл и антивзрывчатое отверстие |
||||||||||
|
Система автоматического микроклимата окрасочной камеры |
|||||||||||
|
Автоматическое включение |
3х380 Вт 50Гц |
Действия при замерзании агрегатной группы |
Размораживание фильтровальной системы, Размораживание льда в рекуператоре, устранение эффекта бани и конденсата |
||||||||
|
Режимы работы |
Режим сна: +2 гр.C Перед работой: +18 гр.C Аварийный: Разморозка |
Мощность max 50 кВт |
|
||||||||
|
Фильтрация |
|||||||||||
|
Фильтр притока |
Включает: главный фильтр карманной формы; а также потолочный фильтр |
Фильтр вытяжки |
Включает: Стекловолоконный, угольный фильтры |
||||||||
|
Автоматическое пожаротушение |
|||||||||||
|
Модель |
Буран 50 |
Срабатывание |
Автоматический режим |
||||||||
|
Способ тушения |
порошковый |
||||||||||
|
Система контроля технологических режимов. IP 65 |
|||||||||||
|
Способ управления |
Реле контроллер |
||||||||||
|
Панель управления |
Окрашивание; температурное распыление с возрастанием; сушка до 60°, регулировка времени сушки; выключатель освещения;; термостат; метр часов;; чрезвычайная остановка; индикатор отказа, выключатель питания |
||||||||||
|
Эл/питание |
|||
|
- двигателя |
3х380 Вт 50Гц |
- освещения |
220 Вт/50Гц |
|
Общая мощность 26-68кВт |
|||
Внутренние габариты камеры (ДхВхШ): 17000x5000х4800 мм
Внешние габариты (ДхВхШ) : 25880x5400x5240 мм
Габариты ОСК












