Окрасочно-сушильная камера для электровозов и локомотивов SPK
|
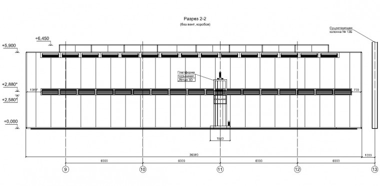
Габариты камеры SPK-31.6.7 |
|||
|
Внешние (mm) |
31144x8750x7600 |
||
|
Внутренние габариты (mm) |
31000x6500x7000 |
||
|
Направление воздушного потока |
Сверху вниз |
||
|
Вытяжка |
Через канал |
||
|
Кабина |
|||
|
Конструкция |
Прямая |
||
|
Выполнение из стали |
+ |
||
|
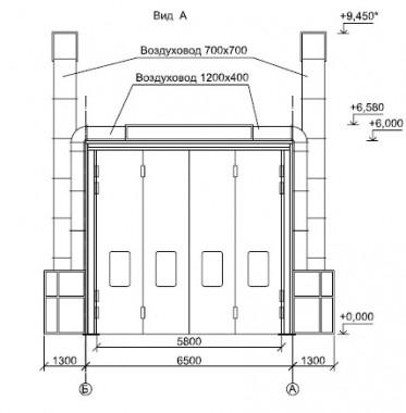
Въездные двери |
|||
|
Размеры (Шир.*Выс.) / число |
5000х6000/ 2 |
||
|
Структура
|
рольставни |
||
|
Размещение |
справа |
||
|
Структура окон |
Овальная форма, проложены теплоизоляционной резиной |
||
|
Крыша |
|||
|
Материал |
Пластины стальные и оцинковка |
||
|
Структура |
Прямая |
||
|
Материал конструкции |
Стальная |
||
|
Конструкция потолка с потолочными фильтрами |
Каркас произведен из стали D8
|
||
|
Панели |
EPS |
||
|
Модель потолочных фильтров |
SP-600G |
||
|
Стенные панели (Заполнены теплоизоляционной пеной, с 2-х сторон) |
|||
|
Наполнитель |
EPS |
||
|
Плот-сть заполнения, г/м3 |
160.0 |
||
|
Толщина панели, мм |
70 |
||
|
Толщина стальных панелей |
0.5 |
||
|
Осветительная система 1000 люкс |
|||
|
Нижний свет |
46 плафонов по 4 лампы |
||
|
Верхний свет |
38 плафонов по 4 лампы |
||
|
Каркас |
Отсут. |
||
|
Схема действия выпрямителя |
для 2-ух ламп одно действие |
||
|
Мощ-сть осветительной системы общая, Вт |
12 096 |
||
|
Группы притока/ вытяжки |
|||
|
Конструкция генераторной группы фильтров |
Квадратная, материал выполнения - сталь |
||
|
Расположение генераторов |
С 2-ух сторон |
||
|
Материал каркаса групп |
Панели Rock Wool |
||
|
Воздушные потоки |
Регулирование пневматической заслонкой |
||
|
Число генераторных групп притока + вытяжки |
4+4 |
||
|
Описание вентилятора притока |
|||
|
Центробежный двойной вентилятор |
|||
|
Модель |
Siemens 4.2L |
||
|
Произв-ность (м³/час) |
170 000 |
||
|
Давление (Па) |
726 |
||
|
Характеристики вытяжного вентилятора ( Центробежный двойной вентилятор) |
|||
|
Модель |
Siemens-450-H |
||
|
Произв-ность (в м³/ч) |
169.000 |
||
|
Давление Па) |
710 |
||
|
Тепловая система |
|||
|
Число горелок |
4 горелки |
||
|
Модель |
RS, газовая горелка |
||
|
Структура теплообменника горелки |
Мультицикл + антивзрывчатое отверстие |
||
|
Кол-во теплообменников |
4 |
||
|
Произв-ность, кВт |
380 |
||
|
Дымоход |
Нет |
||
|
Фильтрация воздуха в камере |
|||
|
Описание фильтра притока |
Основной фильтр имеет карманную форму; Потолочный фильтр |
||
|
Параметры фильтра группы вытяжки |
Угольный, стекловолоконный фильтры |
||
|
Система контроля SPK |
|||
|
Панель управления включает: |
Окрашивание; возрастающее температурное распыление; регулирование периода сушки; сушка Выключатель освещения; термостат; выключатель питания; чрезвычайная остановка; метр часов, индикатор отказа, манометр, Температурный ограничитель; Кнопка для электронной заслонки.
|
||
|
Способ управления |
Реле |
||
|
Питание камеры |
|||
|
Эл/питание освещения |
220/ 50 (Вольт/ Гц) |
||
|
Эл/питание |
3х380/ 50 двигателя (Вольт/ Гц) |
||
|
Общая мощность (кВт) |
От 132 |
||














































































