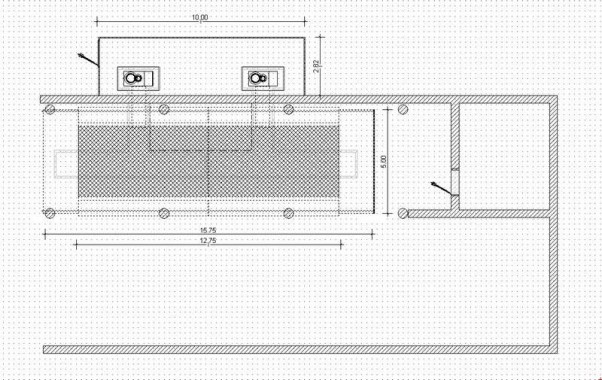
Зона подготовки к покраске автобусов с подогревом (для Тобольское ПАТП)
| Технические характеристики | |
| Габариты: | |
| - кабина (ГхШхВ), мм | 15700х6000х4900 |
| - наружные (ГхШхВ), мм | - |
| Тепловентиляционный агрегат: | |
| - мощность двигателя притока, кВт | 2х5,5 |
| - мощность двигателя вытяжки, кВт | 2х4,5 |
| - тепловая мощность горелки, ккал/час | до 400000 |
| - воздухообмен в режиме окраски, м3/час | до 41000 |
| - макс. расход дизельного топлива, л/цикл | 38 |
| - температура в режиме сушки, °С | 60-80 |
| Требования к электросети: | |
| Общая потребляемая мощность, кВт | 31 |
| Электропитание, В/Гц | 3фх380-400/50 |
| Другие характеристики | |
| Мощность ламп освещения, Вт | 64х36 |
| Длина въездных аппарелей, мм | - |
| Грузоподъёмность пола, кг/колесо | 100000 (0.2х0.2м) |
| Толщина стеновых панелей, мм | 50 |


































































