Окрасочно-сушильная камера для Ж/Д вагонов с возможностью разделения на 7 и 15 м SPK-22x6x6.5 Россия
|
Размеры |
||||||
|
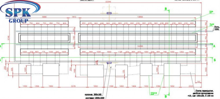
Внутренние габариты камеры |
(ДхВхШ) 22.000x6.000x6.500 мм |
Внешние габариты |
(ДхВхШ) 22290x7890x7300 мм |
|||
|
Поток воздуха |
Сверху по направлению вниз |
Вытяжка |
Через канал, размещенный в основании |
|||
|
Основание ОСК |
||||||
|
Количество каналов |
2 |
Размер |
760x13800/5750 мм/канал |
|||
|
Количество решеток |
По 4 ряда (итого 34 шт.) |
Материал |
Оцинкованная сталь. 30х4мм - пластины; скрученные пруты толщиной 10мм |
|||
|
|
|
Максимал. нагрузка |
До 800 кг/м3 |
|||
|
Кабина окрасочно-сушильной камеры |
||||||
|
Структура кабины
|
Ровная |
Наличие стальной конструкции |
V |
|||
|
Сенные панели |
«сэндвич -панели» утепленные толщ. 70 мм, включающие по 2 металлических листа. Утеплитель выполнен из RW- минеральной ваты |
Толщина |
0,43мм
|
|||
|
Плотность заполнения |
160 грамм/м3 |
|
|
|||
|
Въездные ворота |
||||||
|
Число |
2 |
Размеры дверей |
4500x5500 мм (Ш* В) |
|||
|
Тип ворот |
Роликовые электрические |
Структура |
|
|||
|
Сервисная дверь |
||||||
|
Число |
3 |
Размеры |
700x2000 мм |
|||
|
Расположение |
Справа |
Смотровое окно |
Герметизировано резиновым уплотнителем |
|||
|
Крыша |
Пластины из стали с оцинковкой |
|||||
|
Структура |
Прямая |
Наличие конструкции крыши, выполненной из стали |
V |
|||
|
Конструкция потолка с потолочными фильтрами |
Каркас потолка из стали D8 |
Внешний фасад крыши |
Окрашенный |
|||
|
Материал выполнения панелей крыши |
RW |
Потолочные фильтры (модель) |
SP-600G |
|||
|
Освещение |
||||||
|
Верхнее |
14 плафонов* четыре лампы с обеих сторон = 112 ламп мощ-стью по 36Вт (лампы Philips) |
|
|
|||
|
Нижнее |
33 плафона*четыре лампы с обеих сторон = 264 лампы по 36 Вт (лампы Philips) |
Направление освещения |
Вертикальное
|
|||
|
Выпрямитель |
для 2 ламп единое действие |
Каркас крепления светильников |
Стальной |
|||
|
Мощность освещения общая |
13.536 Вт |
|
|
|||
|
Группы притока и вытяжки для 15 м |
||||||
|
Размещение генераторов |
Справа |
Конструкция фильтров генераторной группы |
Оцинкованная стальная квадратной формы |
|||
|
Обшивка групп вытяжки и притока вытяжки |
RW-панели в основе каркаса
|
Регулировка потоков воздуха |
Пневматическая |
|||
|
Генераторные группы притока |
2 группы |
Генераторные группы вытяжки |
2 группы |
|||
|
Путь потока воздуха притока |
Сквозь главный воздуховод |
Путь потока воздуха вытяжки |
Сквозь основной задний воздуховод |
|||
|
Вентилятор притока |
Центробежный вентилятор 2ного действия |
Вытяжной вентилятор |
Центробежный вентилятор 2ного действия |
|||
|
Модель Siemens -4.5 |
Модель Siemens -710 |
|||||
|
Мощность данного вентилятора 2х7,5 кВт |
Мощность данного вентилятора 11 кВт |
|||||
|
Произ-ность: 84.000м³/ч |
Произ-ность 80.000 м3/ч |
|||||
|
|
|
|||||
|
Контроль и управление притоком воздуха |
|
Контроль и управление вытяжным потоком воздуха |
Использование ручной заслонки |
|||
|
Воздуховод для забора |
|
Воздуховод для выброса |
Включает 4 прямых канала. Размеры 1000х1000х1000 мм. 1 - коленный канал 90°, 1- коленный канал 30° |
|||
|
Группы приточных и вытяжных фильтров для 7 м |
||||||
|
Размещение генераторов |
Справа |
Конструкция фильтров генераторной группы |
Оцинкованная стальная квадратной формы |
|||
|
Обшивка групп притока и вытяжки |
каркас из RW-панелей
|
Регулирование потоков воздуха |
Пневматическая |
|||
|
Генераторные группы притока |
одна |
Генераторные группы вытяжки |
одна |
|||
|
Путь потока воздуха притока |
Сквозь главный воздуховод |
Путь потока воздуха вытяжки |
Через задний воздуховод |
|||
|
Вентилятор притока |
Центробежный вентилятор 2ного действия |
Вытяжной вентилятор |
Центробежный вентилятор 2ного действия |
|||
|
Модель Siemens -630 |
Модель Siemens -710 |
|||||
|
Мощность данного вентилятора 2х7,5 кВт |
Мощность данного вентилятора 11 кВт |
|||||
|
Произв-сть: 50.000 м³/ч |
Пр-ность: 40.000 м³/ч |
|||||
|
Управление притоком воздуха |
|
Управление вытяжным потоком воздуха |
Использование ручной заслонки |
|||
|
Воздуховод для забора |
|
Воздуховод для выброса |
Включает 4 прямых канала. Размеры 1000х1000х1000 мм. 1-коленный канал 90°, 1- коленный канал 30° |
|||
|
Система отопления |
||||||
|
Способ отопления |
Электрический нагрев |
Теплообменников |
3 шт. |
|||
|
Горелка |
RS5, одноступенчатая |
Тепловая мощность |
260000 к Кал/ ч |
|||
|
Теплообменник |
Много-тактовый: анти-взрывные отверстия |
Топливный генератор |
Пр-сть 260 кВт/час |
|||
|
Выхлопная труба |
нет |
Материал выхлопной трубы |
нет |
|||
|
Фильтрация |
||||||
|
Фильтр в приточной группе |
Главный фильтр карманной формы; Потолочный фильтр |
Фильтр в вытяжной группе |
Включает стекловолоконный + угольный фильтры |
|||
|
Система контроля ОСК |
||||||
|
Способ управления |
Реле |
|
|
|||
|
Запуск генератор притока |
V |
Запуск генератора вытяжки |
V |
|||
|
Панель управления |
Окрашивание, выключатель питания, выключатель освещения, аварийная остановка, контроллер температуры, таймер в кабине, индикаторы, контроллеры режимов работ.
|
|||||
|
Питание в малярной камере |
||||||
|
Питание двигателя |
3х380 вольт 50Гц |
Питание освещения |
220 вольт 50Гц |
|||
|
Общая мощность 639кВт |
||||||
|
Дополнительно |
||||||
|
Стекло |
Толщина 5 мм, стекло закаленное |
|
|
|||
Внутренние габариты камеры (ДхВхШ): 22.000x6.000x6.500
Внешние габариты (ДхВхШ) : 22290x7890x7300
Габариты ОСК





















