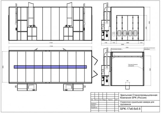
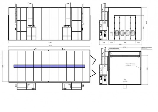
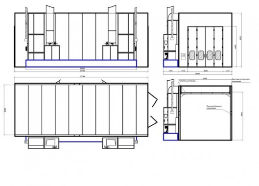
Малярная камера для грузовых автомобилей SPK-17.6.5 РОССИЯ
|
Габариты камеры |
|
|
Внешние |
17000*6600*5600 мм |
|
Внутренние габариты |
17144*8494*6000 мм |
|
Направление воздушного потока |
Вниз |
|
Вытяжка |
Проходит через канал |
|
Кабина камеры SPK |
|
|
Конструкция |
Прямая |
|
Стальная конструкция |
Присутствует |
|
Напольные решетки |
|
|
Число каналов |
1 |
|
Размер канала |
770/13000мм |
|
Число решеток в каждом канале |
По 1-му ряду |
|
Материал/покрытие решеток |
Сталь/оцинковка |
|
Максимальное усилие |
500-800 кг/м3 |
|
Въездные двери |
|
|
Размер дверей (ШхВ) |
4000х4000 |
|
Структура |
Ворота распашные |
|
Число |
1 |
|
Сервисная дверь |
|
|
Размер дверей(ШхВ) |
800х2000 |
|
Число |
2 |
|
Структура окон в сервисной двери |
Овальные с проложенной теплоизоляционной резиной |
|
Стеновые панели |
|
|
Структура |
Каждая панель оббивается стальными пластинами с обеих сторон, между этими пластинами имеется заполнение теплоизоляционной пеной |
|
Крыша |
|
|
Материал |
Стальные пластины с оцинковкой |
|
Структура |
Прямая |
|
Конструкция |
Стальная |
|
Конструкция потолка, оборудованного потолочными фильтрами |
Каркас выполнен из стали D8
|
|
Панели крыши |
Из минеральной ваты |
|
Фильтры потолочные |
SP-600G |
|
Система освещения |
|
|
Нижний свет |
24 плафона*4 лампы, итого 208 ламп, мощность 36 Вт |
|
Верхний свет |
20плафонов*4 лампы, итого 304 лампы, мощность 36Вт каждой лампы |
|
Направление |
Вертикальный |
|
Каркас |
Отсутствует |
|
Действие выпрямителя |
Одно действие для 2-х ламп |
|
Мощность системы освещения (совокупная) |
6 432 Вт |
|
Группы притока и вытяжки |
|
|
Конструкция генераторной группы |
Квадратная, материал - сталь |
|
Расположение генераторов |
С обеих сторон |
|
Материал каркаса обеих групп |
Панели Rock Wool |
|
Воздушные потоки |
Регулируются пневматической заслонкой |
|
Число генераторных групп притока/вытяжки |
2/2 |
|
Характеристики вентилятора притока |
|
|
Центробежный вентилятор имеет II-ное действие |
|
|
Модель вентилятора |
Siemens 4.2L |
|
Мощность |
2х4кВт |
|
Производительность |
63 000 м³/ч |
|
Давление |
726 Па |
|
Характеристики вытяжного вентилятора |
|
|
Модель вентилятора |
Siemens -450-H |
|
Мощность |
1х5,5кВт |
|
Производительность |
63 000 м3/ч |
|
Давление |
710 Па |
|
Подогрев воздуха в покрасочной камере |
|
|
Характеристики горелки: |
Газовая, дизельная, паровой, либо водяной калорифер, а также электро |
|
Модель |
RS5; одноступенчатая |
|
Мощность |
420кВт |
|
Число горелок |
2 |
|
Фильтрация воздуха в малярной камере |
|
|
Характеристики фильтра притока |
Основной фильтр карманной формы; Потолочный фильтр |
|
Характеристики фильтра вытяжки |
Угольный и стекловолоконный фильтры |
|
Система контроля |
|
|
Панель управления включает: |
Окрашивание; нарастающее температурное распыление; сушка; регулировка фазы сушки; Выключатель освещения; метр часов; индикатор отказа; выключатель питания; термостат; температурный ограничитель, чрезвычайная остановка |
|
Способ управления |
Реле |
|
Питание |
|
|
Питание освещения |
220 вольт 50Гц |
|
Питание двигателя |
3х380 вольт 50Гц |
|
Общая мощность |
33 кВт |
Вытяжка: Проходит через канал
Внутренние габариты камеры (ДхВхШ): 17144*8494*6000 мм
Внешние габариты (ДхВхШ) : 17000*6600*5600 мм
Габариты ОСК








