Окрасочно-сушильная камера для грузовиков SPK-12.6.5.
Спецификация оборудования.
|
Размеры окрасочной камеры |
|||||
|
Внутренние размеры |
12000x5500х4300mm |
Внешние размеры |
12160x5600x4604mm |
||
|
Вытяжка |
Ч-з пол |
Направление воздушного потока |
Сверху вниз |
||
|
Вытяжка |
|||||
|
Количество каналов |
2 каналов |
Размер канала |
10000х770mm/канал |
||
|
Количество решеток |
2 рядов решеток |
Решетки |
полосы из стали, плоские+10мм скрученная арматура из стали, покрытие - оцинковка |
||
|
Максим. нагрузка |
2.500 кг /м.кв |
||||
|
Кабина оск |
|||||
|
Конструкция |
Каркас силовой |
Конструкция из стали |
Присутствует |
||
|
Главная дверь (1 шт) |
|||||
|
Размеры ворот |
4.000х4.000 (ШхВ) |
||||
|
Материал |
Сталь оцинкованная |
Разделение камеры |
Присутствует |
||
|
Структура окон |
нет |
Уплотнение |
Теплоизоляционной резиной |
||
|
Стеновые панели |
|||||
|
Толщина панели,мм |
80 |
Толщина стали,мм |
1 |
||
|
Наполнитель панели |
Минеральная вата |
Характеристики наполнителя |
Негорючий и пропитан антисептиком |
||
|
Плотность заполнения |
112 кг/м³ |
||||
|
Сервисная дверь |
|||||
|
Кол-во дверей |
Одна дверь |
Размер дверей |
800 х 2.000(ШхВ) |
||
|
Вид двери |
выхлопная |
Форма и структура окна |
овальное, с уплотнением из термоизоляционной резины |
||
|
Крыша |
|||||
|
Форма и конструкция |
Прямая, сэндвич панели 50 мм. |
Стальная конструкция |
Стальной силовой каркас |
||
|
Конструкция потолка с закреплением фильтров потолка |
Каркас из стали D8 |
Покрытие каркаса |
+, порошковая покраска |
||
|
Материал панелей |
Минеральная вата |
Модель фильтров потолочных |
SP -600 G |
||
|
Освещение в ОСК |
|||||
|
Свет верхний (45 градусов) |
16 плафонов х4 лампы, всего 64 лампы Х 36Вт |
Материал каркаса для светильников |
Сталь |
||
|
Свет нижний (встроенный в панели) |
20 плафона * 4 лампы. Всего 80 ламп Х 36Вт |
|
|
||
|
Выпрямитель |
1 действие для двух ламп |
|
|
||
|
Группы притока и вытяжки (с воздухообменом 120 крат/ч) |
|||||
|
Расположение генератора |
По левой стороне |
Конструкция генераторной группы |
стальная конструкция в форме квадрата |
||
|
Обшивка обеих групп |
Теплоизоляционные панели |
Регулировка потоков воздуха |
Автоматическая заслонка |
||
|
Количество генераторов приточной и вытяжной групп |
По 2 генератора |
||||
|
Поток воздуха притока |
Имеет направление - сверху вниз |
Воздушный поток вытяжки |
Имеет направление - снизу вверх |
||
|
Характеристика вентилятора притока |
Вентилятор центробежный двойного действия |
Характеристика вытяжного вентилятора |
Вентилятор центробежный двойного действия |
||
|
Марка - Siemens |
Марка - Siemens |
||||
|
2х 5,5 кВт |
Давление 726 Па. |
||||
|
Давление 780Па. |
1х 7,5кВт |
||||
|
Пр-ность: 40 000 м3/час |
Пр-ность: 40 000 м3/час |
||||
|
Управление притоком воздуха |
Автоматическая заслонка |
Управление вытяжным воздушным потоком |
Оборудован ручной заслонкой |
||
|
Подогрев воздуха в оск |
|||||
|
Способ подогрева |
вода |
Количество теплообменников |
2 шт. |
||
|
Фильтрация камеры |
|||||
|
Фильтр вытяжки |
Конструкция: Стекловолоконный и угольный фильтры |
Фильтр притока |
Основной фильтр имеет форму кармана; + Потолочный фильтр |
||
|
Система перемещения маляров в покрасочном боксе |
|||||
|
Лифт площадки |
две |
Питание |
3х380 Вт/50Гц |
||
|
Система контроля технологических режимов. IP 65 |
|||||
|
Управление |
Реле контроллер |
||||
|
Панель управления |
Окраска; возрастающее тепловое распыление; сушка до 80-ти гр. и регулировка времени, выключатели: освещения и питания; индикатор отказа; термостат; метр часов и чрезвычайная остановка; |
||||
|
Питание |
|||
|
Питание двигателей |
3х380 Вт/50Гц |
Питание освещения |
220 Вт/50Гц |
|
Общая мощность 39 кВт |
|||
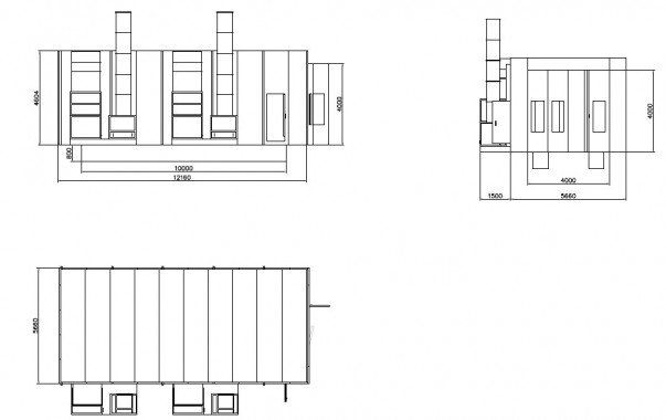
Внутренние габариты камеры (ДхВхШ): 12000x5500х4300 mm
Внешние габариты (ДхВхШ) : 12160x5600x4604 mm
Габариты ОСК

