Окрасочно-сушильная камера тупикового типа SPK-18.6.5 РОССИЯ
| ОКРАСОЧНО-СУШИЛЬНАЯ КАМЕРА ТУПИКОВОГО ТИПА SPK-18.6.5 РОССИЯ | |
| Размеры | |
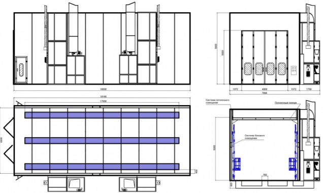
| Внутренние р-ры камеры | 18000x6000x5000 мм | 
| Внешние размеры | 18144x7894x5600 мм | 
| Направление воздушного потока | Вниз | 
| Вытяжка | В стенах ОСК | 
| Вытяжка через приямок | |
| Каналы | 3 | 
| Число рядов решеток | 3 ряда | 
| Конструкция решеток | Стальные плоские полосы со стальной скрученной арматурой 10 мм толщиной | 
| Размер каждого канала | 17000х760 мм | 
| Покрытие решеток | Оцинковка | 
| Кабина | |
| Конструкция кабины | Выпуклая | 
| Стальная конструкция | Каркас силовой | 
| Панели стенные | |
| Толщина стали в панелях (mm) | 0.55 | 
| Наполнитель | Вата минеральная | 
| Плотность | 19 грамм/ м3 | 
| Толщина Панели (mm) | 80 | 
| Сервисная дверь кабины | |
| Габариты двери (ШхВ) | 800*2000 мм | 
| Расположение | Справа | 
| Число дверей | 2 | 
| Окна | Герметизация резиновыми уплотнителями, окна овальные | 
| Основная дверь данной ОСК | |
| Структура | 2 шт. распашные ворота | 
| Размеры (ШхВ) | 5000x5000 | 
| Материал | Сталь оцинкованная | 
| Крыша | |
| - выполнена из стальных оцинкованных пластин | |
| Панели | Материал исполнения минеральная вата | 
| Структура крыши | Прямая | 
| Потолок | каркас стальной (D8) 
 | 
| Стальная конструкция | Силовой каркас | 
| Потолочные фильтры | SP-600G | 
| Осветительная система в камере | |
| Освещение верхнее | 24 плафона Х 4 лампы = 96 ламп по 36 Вт каждая | 
| - нижнее | 24 плафона Х 4 лампы = 96 ламп по 36 Вт каждая | 
| Действие выпрямителя | Одно действие для каждых двух ламп | 
| Каркас крепления для светильников | Из стали | 
| Общая мощность | 6 912 Вт | 
| Параметры группы притока/ вытяжки | |
| Размещение генераторов | Справа | 
| Число генераторных групп вытяжки /притока | По два | 
| Параметры 2-ного центробежного вентилятора в приточной группе | |
| Мод. вентилятора | Siemens 4.5M | 
| Производит-ность (в куб. /час) | 74 000 | 
| Мощ-сть , кВт | 2*5.5 | 
| Давление | 780Па | 
| Параметры 2-ного центробежного вентилятора с ручной заслонкой в вытяжной группе фильтров | |
| Модель | Siemens-710-H | 
| Производ-ность (в куб.м/час) | 74 000 | 
| Мощ-сть, кВт | 1*7,5 | 
| Давление | Давление 726Па. Привод ременной | 
| Система фильтрации | |
| Конструкция фильтра притока | Фильтр потолка и основной фильтр | 
| Хар-ка фильтра вытяжки | Фильтры: угольный и стекловолоконный | 
| Система подогрева | |
| Способ подогрева | 1. Газовая/ дизельная горелка, 2. паровой/, водяной теплообменник с догревом | 
| Модель | R5 | 
| Количество | 2 теплообменника | 
| Производительность, кКал/час | 330.000 х 2 | 
| Конструкция теплообменника | Антивзрывчатое отверстие и Мультицикл | 
| Дымоход | - | 
| Контроль технологических режимов | |
| На панели управления расположены следующие переключатели: | - Окрашивание; - метр часов; - индикатор отказа; -сушка до 80°С, - регулировка времени сушки; - выключатель освещения; - термостат; - нарастающее температурное распыление; - выключатель питания; - чрезвычайная остановка | 
| Управление | Реле | 
| Питание | |||||
| Эл-питание двигателя | 380 вольт * 3, 50Гц | Электропитание освещения | 220 вольт 50 Гц | ||
| Мощность общая 46,6 кВт | |||||
| Система пожаротушения Буран50 | |||||
| Срабатывание в автоматическом режиме | Порошковая система пожаротушения | ||||
Вытяжка: В стенах ОСК
Внутренние габариты камеры (ДхВхШ): 18000x6000x5000 мм
Внешние габариты (ДхВхШ) : 18144x7894x5600 мм
Габариты ОСК


