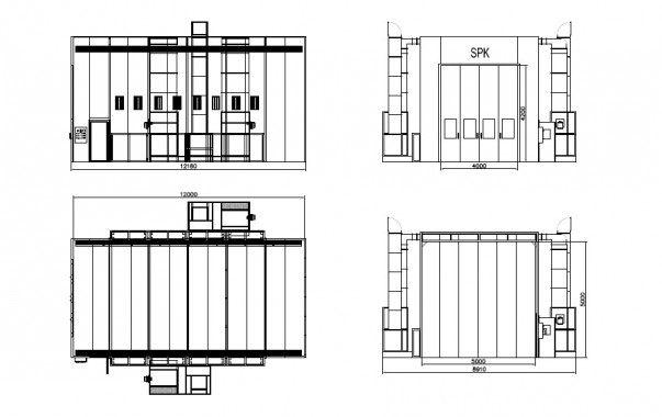
Покрасочно-сушильная камера для грузового транспорта SPK-12х5х5
1. Спецификация оборудования. Камера для окраски.
|
Размеры |
|||
|
- внутренние |
12000x5000х5000 mm |
||
|
- внешние |
12180x8910x5500 mm |
||
|
Воздух направляется |
↓ |
||
|
Вытяжка ЧЕРЕЗ ПОЛ |
|||
|
Каналы, число (шт) |
2 |
||
|
Размер 1-го канала |
11480х768 mm |
||
|
Решетки |
включают в конструкцию: скрученную арматуру, произведенную из стали, стальные полосы плоские |
||
|
Ряды решеток |
два |
||
|
Покрытие |
оцинкованное |
||
|
Характеристики кабины |
|||
|
Каркас |
силовой |
||
|
Стальная конструкция |
Есть |
||
|
Дверь основная (1 дверь) |
|||
|
Габариты ворот (Ш * В) |
4000 * 4200 |
||
|
Исполнение двери |
сталь оцинкованная |
||
|
Уплотнение двери |
резиной с теплоизоляцией |
||
|
Разделение камеры |
Да, разделена |
||
|
Окна |
Прямоугольной формы |
||
|
Панели стеновые |
|||
|
Толщ. панели/стали в панели (в mm) |
80 / 0.6 |
||
|
Наполнитель в панелях |
Минер. вата (с антисептиком и негорючая) |
||
|
Плотность наполнителя ваты минеральной |
112 кг на 1 куб.м |
||
|
Дверь сервисная |
|||
|
Размер / кол-во дверей, шт. |
800 х 2000 / 2 |
||
|
Вид двери |
выхлопная |
||
|
Описание окна |
Для помещения установлено одно прямоугольное окно, имеющее уплотнение, выполненное из резины с теплоизоляцией |
||
|
Описание крыши |
|||
|
Форма |
Прямая |
||
|
Окраска каркаса |
Порошковая |
||
|
Каркас и покрытие каркаса |
Стальной силовой с порошковой покраской |
||
|
Конструкция потолка с фильтрами на потолке/ мод. фильтров |
Каркас стальной, сталь D8/ SP-600G |
||
|
Материал |
Лист стальной |
||
|
Освещение ОСК |
|||
|
свет верхний (45 гр.) |
по четыре лампы в 16-ти плафонах |
||
|
Каркас для светильников |
из стали |
||
|
свет нижний (в панелях) |
по две лампы в 16-ти плафонах |
||
|
Выпрямитель |
для 2-ух ламп – действие одно |
||
|
Приточная + вытяжная группы |
|||
|
Конструкция генераторной группы/ материал |
Квадратная / материал - сталь |
||
|
Положение генератора |
с обеих сторон |
||
|
Регулирование воздуха |
Автоматическая заслонка |
||
|
Обшивка |
из теплоизоляционных панелей |
||
|
Количество генераторов притока |
по 2 шт.
|
||
|
Число генераторов вытяжки |
|||
|
Направление воздуха притока/ вытяжки |
Сверху вниз и снизу вверх |
||
|
Вентиляторы притока/ вытяжки |
В обеих группах центробежные 2-ные вентиляторы |
||
|
Мощность (кВт): 2х4/ 1х6 |
|||
|
Производительность ( м³/ч): 42 000 |
|||
|
Давление (Па) 760 / 731 |
|||
|
Управление притоком воздуха/ вытяжкой |
Автоматическая / ручная заслонка |
||
|
Обогрев воздуха |
|||
|
Число теплообменников, шт./структура |
2/ мультицикл и антивзрывчатое отверствие |
||
|
Подогрев |
Дизельная горелка |
||
|
Модель горелок |
RС |
||
|
Мощ-сть |
458 кВт расход от 8 до 22 л/час |
||
|
Фильтр в группе вытяжки |
Стекловолоконный и предварительный фильтры |
||
|
Фильтр в группе притока |
Основной карманной формы и Потолочный фильтры |
||
|
Передвижение операторов-маляров в Камере окраски для металла |
|||
|
Лифт-площадки, шт. |
две |
||
|
Питание |
3 х 380Вт/ 50Гц |
||
|
Автоматическая Система пожаротушения в камере |
|||
|
Модель системы |
Буран 50КД |
||
|
Срабатывание |
автоматическое |
||
|
Тушение |
|
||
|
Контроль и управление технологическими режимами. IP 65 |
|||
|
Переключатели, расположенные на Управляющей панели |
Окрашивание; тепловое распыление нарастающее; чрезвычайная остановка и метр часов, термостат; выключатель питания; сушка с регулировкой времени; выключатель света; индикатор отказа; |
||
|
Управление - Реле |
|
||
|
Эл-питание |
||
|
1. Питание двигателя |
3х 380Вт/ 50Гц |
|
|
2. Питание освещения |
220Вт/ 50Гц |
|
|
Общая мощность 9 - 34 кВт |
|
|
Вытяжка: Через пол
Внутренние габариты камеры (ДхВхШ): 12000x5000х5000 мм
Внешние габариты (ДхВхШ) : 12180x8910x5500 мм
Габариты ОСК







